静电地板安装工艺
一、静电地板的功能机房地板一般采用防静电活动地板。防静电地板的作用,就是把地面上所产生的静电,通过防静电地板导入大地。这一点,下面我们立刻即可一目了然。一、铺设防静电地板活动地板,主要具有以下功能:1、...
一、静电地板的功能
机房地板一般采用防静电活动地板。防静电地板的作用,就是把地面上所产生的静电,通过防静电地板导入大地。这一点,下面我们立刻即可一目了然。
一、铺设防静电地板活动地板,主要具有以下功能:
1、可拆卸性。因此,机房内设备可在防静电地板下进行自由的电器连接,便于铺设和维修,使机房整洁美观;
2、可以保护各种电缆、电线、数据线及插座,使其不受损坏;
3、可以利用地板下的空间作为空调的静压风库,获得满意的气流组织;
4、消除电缆外露对人体的危害;
5、可以利用防静电活动地板的可调性,消除地面的不平度,保证机房地面的整体水平度;
6、能使静电荷漏泄至地,并反射电磁辐射。
7、机房地板,应符合国标GB6650-86《计算机房用活动地板技术条件》

二、静电地板安装的施工要求
1、地面处理:
机房抗静电地板安装工程中,地面预处理十分关键,在铺设地板前必须先对地面进行较好的预处理,首先刷素泥一道,抹平机房地面,采用20厚1:2.5水泥砂砂抹面赶光,地面基础处理到平整、光滑、没有明显的坡度和不平,再刷机房专用地台漆二遍,起防潮、防霉作用。

2、拉水平线
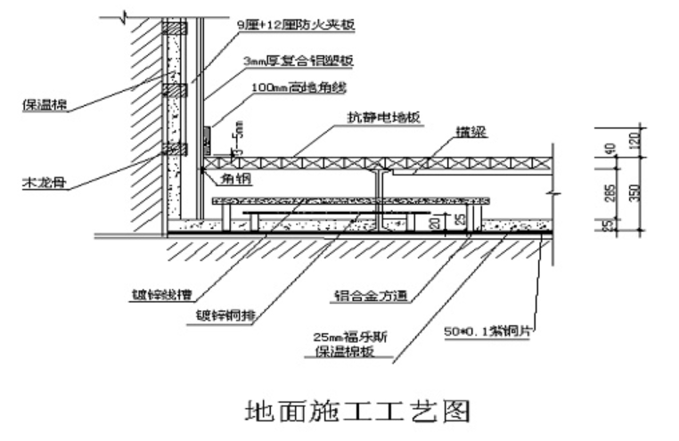
地面弹方格网线,弹线要反复校正。在机房四周墙面安装角钢支架,地面按地面弹线铺设金属屏蔽网(50*0.1紫铜片),金属屏蔽网与机房接地铜排相连,组成一个完整的机房屏蔽系统,具有接地、抗静电、抗干扰的作用。
根据房间平尺寸和设备布置情况,按活动地板块模数,制定铺设方案及合理的铺设方法,应遵循以下原则:
①如室内无控制柜等设备,几何尺寸有符合活动地板块模数时,宜由内向外铺设。
②如室内平面尺寸不符合板块模数时,应把室内两个方向的中心点找出来,看两边尺寸相差多少,若相差不明显,宜由外向内铺设;若相差较大时,宜进行对称分格,由内向外铺设。
③如室内地面上没有控制柜等设备(要留洞时),其铺设方向和先后顺序应综合考虑。
④根据设计要求确定铺设高度。
综合上述,铺设方法确定后,要进行找中、套方、分格、定位放线工作,即需要把分格线标弹在地面上,又要把标高线标弹在四周墙壁上,以便于施工时操作控制。

3、接地铜排
首先要在地板的下方先铺设一层铜泊,用于和地板的充分接触,其次就是把铜泊铺设到墙边时,汇集几个点接到接地线上(三到五个点,防止在使用中有点的断开),接地线的另一端要连接一个接地柱,接地柱能埋在地面50CM以下的深度,这样才能使地板起到静电释放的作用!

结合布线系统的设计及施工,在地面架空安装强弱电走线线槽及接地铜排,强弱电走线线槽之间间距大于30mm。
4、保温棉
在地面铺设和地板下四周墙面铺设25mm厚阿姆斯壮一级福乐期保温棉,包福乐斯不燃铝箔,起到保温、隔热、防潮作用,至此,地面预处理完成。

5、铺设防静电地板
地板支撑脚直接安装在50*0.1紫铜片上方。敷设地板时,用水泡水平仪逐步找平,高度靠可调支架调节,相临地板间不得有缝隙,安装较重设备的地板下部加强支撑。地板板面标高300~350mm,具有足够空间形成地板下净压风库。
铺设活动地板块并调整水平高度,保证四角接触平整、严密,活动地板块不符合模数时,不足部分可根据实际尺寸切割后镶补(切割地板时要精细),并配装相应的可调支架和横梁。
地面防静电地板施工工艺图如下:

机房踢脚台阶施工工艺图如下:

进入机房架高地面的踢脚台应具有防水隔潮、美观大气、坚固实用等特点,本项目中,可以使用120mm砖墙砌筑以隔离机房架高地面,设一级台阶,台阶的宽度以300mm为宜,以砌素砼而成,根据实际需要,在台阶表面铺设防水材料,如大理石、丁纹钢板、塑胶地板等。
三、防静电地板铺设图
对于静电地板的详细安装,一直是很多朋友的难点,问的各种问题比较多,为了方便大家了解,我们这里有一些图,方便大家更直观的理解。










相关新闻